燃气过滤器
简介GF600杂质过滤器适用于所有需要对天然气进行过滤的场合(气体调节和计量站、输送站),并在气体流动中起到去除固体颗粒的作用。聚集在滤壳下部的颗粒被周期性地排出。GF600过滤器安装在计量和控制线之前,通常在过滤橇内,以便在不停止气体供应
简介
GF600杂质过滤器适用于所有需要对天然气进行过滤的场合(气体调节和计量站、输送站),并在气体流动中起到去除固体颗粒的作用。聚集在滤壳下部的颗粒被周期性地排出。GF600过滤器安装在计量和控制线之前,通常在过滤橇内,以便在不停止气体供应的情况下更换过滤滤芯。
运行原理
气体由入口进入,到达使流速降低的滤芯,大尺寸的固体颗粒和液体颗粒从气体中分离并聚集在容器的底部。当气体从外部流动到内部时,残留的固体颗粒被保留(取决于滤芯滤网的等级)。清洁气体流向出口。

技术特性
过滤器适用于天然气或其他非腐蚀性气体。过滤器的主要参数:
-公称压力PN 6、16、25、40、64、100 bar
-公称直径DN25-DN500
-工作温度-196-300℃
-滤芯不锈钢滤网(过滤等级10-300μm)
纤维素滤芯(过滤等级1-50μm)
聚酯(过滤等级1-50μm)
玻璃纤维(过滤等级1-10μm)
-上盖盲法兰(CF 601) 快速开启关闭(GF 602)
主要特点
-高流量和高效率;
-维修方便安全;
-过滤器在移除快速开启合闸前自动减压;
-尺寸范围广,可根据要求提供特殊尺寸和配置;
-符合GB/T150 要求;
-根据要求,可遵守任何其他标准(ASME, DIN);
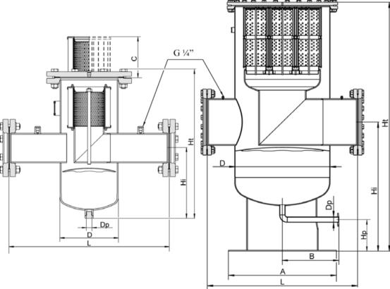
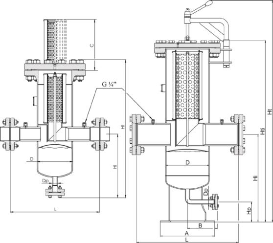
设备尺寸






